Greiferschaufel-Brückenkran-Kabel: Aufbau, Belastungen und Zukunftstechnologien in der Schüttgutlogistik
Greiferschaufel-Brückenkrane sind das Rückgrat moderner Schüttgutlogistik in Häfen, Kraftwerken und Recyclinganlagen. Doch während der Fokus oft auf Mechanik und Greifertechnik liegt, bleibt ein kritisches Element häufig unterschätzt: das Kabelsystem. Dieses Fachblog beleuchtet detailliert die technologischen Anforderungen, strukturellen Besonderheiten und Belastungsszenarien von Kabeln in Greiferbrückenkranen. Auf Basis industrieller Praxis, technischer Normen und aktueller Entwicklungen analysieren wir die wichtigsten Kabeltypen, ihre Materialien, mechanischen Beanspruchungen sowie zukünftige Trends wie intelligente Kabelsysteme und Zustandsüberwachung. Der Artikel richtet sich an Ingenieure, Einkäufer und technische Entscheider, die tiefere Einblicke in die Zuverlässigkeit und Effizienz von Krananlagen gewinnen möchten.
9/15/202410 min read
Greiferschaufel-Brückenkran-Kabel: Aufbau, Belastungen und Zukunftstechnologien in der Schüttgutlogistik
Rolle von Greiferschaufel-Brückenkranen in der Industrie
Greiferschaufel-Brückenkrane stellen eine der zentralen Schlüsseltechnologien im modernen Schüttgutumschlag dar und sind integraler Bestandteil hochautomatisierter industrieller Wertschöpfungsketten. Ihre Bedeutung ergibt sich vor allem aus der Fähigkeit, große Mengen an unverpackten Materialien – wie Kohle, Erz, Biomasse, Schlacke oder kommunalen Abfall – effizient, kontinuierlich und mit minimalem Personaleinsatz zu bewegen.
In klassischen Industrien wie der Energieerzeugung (z. B. Kohlekraftwerke oder Waste-to-Energy-Anlagen), der Metallurgie sowie im Hafenumschlag fungieren Greiferbrückenkrane als logistisches Bindeglied zwischen Lager, Transport und Verarbeitung. Sie ermöglichen nicht nur das reine Be- und Entladen, sondern übernehmen zunehmend auch komplexe Aufgaben wie Materialhomogenisierung, Dosierung und Prozessintegration.
Ein entscheidender Vorteil gegenüber Förderband- oder pneumatischen Systemen liegt in ihrer Flexibilität und Adaptivität:
Unterschiedliche Materialien können mit demselben System gehandhabt werden
Greiferformen lassen sich an Materialeigenschaften anpassen
Betrieb ist auch bei heterogenen oder schwer fließenden Stoffen möglich
Diese Vielseitigkeit erklärt, warum Greiferkrane besonders in dynamischen und nicht standardisierten Materialflüssen dominieren, etwa in Recyclinganlagen oder Biomassekraftwerken.
Darüber hinaus zeigen industrielle Studien und Herstellerdaten, dass moderne Greiferbrückenkrane für hohe Betriebszyklen (z. B. A6–A8-Betriebsklassen) ausgelegt sind und somit für kontinuierliche 24/7-Prozesse geeignet sind.
Mit dem Fortschritt der Industrie 4.0 entwickeln sich diese Systeme zunehmend zu cyber-physischen Systemen, in denen Sensorik, Automatisierung und datenbasierte Steuerung integriert sind. Dadurch verschiebt sich ihre Rolle von einer rein mechanischen Umschlagmaschine hin zu einem intelligenten Materialmanagementsystem.
👉 Greiferschaufel-Brückenkrane sind nicht nur Hebezeuge, sondern zentrale Knotenpunkte moderner industrieller Logistiksysteme, deren Leistungsfähigkeit direkt die Effizienz ganzer Produktionsketten beeinflusst.
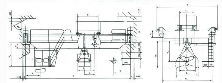
Funktionsprinzip und Systemarchitektur
Das Funktionsprinzip eines Greiferschaufel-Brückenkrans basiert auf einem hochgradig koordinierten Zusammenspiel mehrerer mechanischer, elektrischer und steuerungstechnischer Subsysteme. Im Kern handelt es sich um ein mehrdimensional bewegliches Materialtransportsystem, das drei Freiheitsgrade kombiniert:
1. Längsbewegung der Brücke (Kranfahrt)
2.Querbewegung der Laufkatze
3.Vertikale Hubbewegung des Greifers
Diese drei Bewegungsachsen ermöglichen eine vollständige räumliche Positionierung innerhalb des Arbeitsbereichs.
Grundstruktur des Systems
Ein typischer Greiferbrückenkran besteht aus folgenden Hauptkomponenten:
Brückenträger (Hauptstruktur)
Laufkatze (Trolley-System)
Hubwerk (Winden- und Seilsystem)
Greiferschaufel (Lastaufnahmemittel)
Antriebssystem (Motoren, Getriebe)
Elektrisches Steuerungssystem (SPS, Sensorik)
Diese Systemarchitektur ist modular aufgebaut und kann je nach Anwendung angepasst werden, z. B. durch unterschiedliche Greifertypen oder Automatisierungsgrade.
Zyklischer Arbeitsprozess (Betriebslogik)
Der Betriebsablauf folgt einem wiederkehrenden, klar strukturierten Zyklus:
Positionierung
Die Laufkatze bewegt sich zur Zielposition über dem Material.
Absenken des Greifers
Das Hubwerk senkt den geöffneten Greifer ab.
Greifvorgang
Der Greifer schließt sich mechanisch, hydraulisch oder elektrisch und nimmt das Material auf.
Heben und Transport
Der gefüllte Greifer wird angehoben und horizontal zur Zielposition transportiert.
Entladung
Öffnen des Greifers und Abgabe des Materials.
Dieser Prozess ist weitgehend automatisierbar und wird durch Steuerungssysteme präzise kontrolliert.
Mechanische Besonderheiten des Greifersystems
Ein zentrales Element ist der Greifermechanismus selbst. Besonders verbreitet sind:
Vierseil-Greifer: getrennte Seile für Heben und Öffnen/Schließen
Zweiseil-Greifer: kompaktere Bauweise
Elektrohydraulische Greifer: präzisere Steuerung
Beim klassischen Vierseilsystem wird der Greifvorgang durch ein Zusammenspiel von Tragseilen und Öffnungs-/Schließseilen realisiert, die über Umlenkrollen geführt werden und ein Flaschenzugsystem bilden.
Diese Konstruktion ermöglicht:
hohe Greifkräfte
kontrolliertes Öffnen/Schließen
Anpassung an unterschiedliche Materialdichten
Steuerung und Automatisierung
Moderne Greiferbrückenkrane sind mit fortschrittlichen Steuerungssystemen ausgestattet, die folgende Funktionen ermöglichen:
Halb- oder vollautomatischer Betrieb
Lastüberwachung und Sicherheitsabschaltungen
Kollisionsschutz und Endlagensicherung
Zunehmend kommen auch intelligente Steueralgorithmen zum Einsatz, die Greifprozesse optimieren, z. B. durch automatische Anpassung der Greifkraft an Materialeigenschaften.
Systemintegration und Schnittstellen
Ein wesentlicher Aspekt moderner Anlagen ist die Integration in übergeordnete Systeme:
Lagerverwaltungssysteme (WMS)
Produktionssteuerung (MES)
Energie- und Prozessmanagement
Dadurch wird der Kran zu einem aktiven Bestandteil digitaler Prozessketten, anstatt nur als isoliertes Fördermittel zu fungieren.
👉Das Funktionsprinzip eines Greiferschaufel-Brückenkrans ist weit mehr als ein einfacher Hebeprozess. Es handelt sich um ein hochkomplexes, mechatronisches System, das mechanische Präzision, elektrische Leistungsfähigkeit und digitale Steuerung miteinander vereint.
Die zunehmende Integration von Automatisierung und Sensorik transformiert diese Systeme zu intelligenten, datengetriebenen Plattformen für effizienten Materialfluss.


Bedeutung des Kabelsystems im Gesamtsystem
Das Kabelsystem eines Greiferschaufel-Brückenkrans stellt weit mehr dar als eine bloße Energie- oder Signalverbindung – es fungiert als funktionale Lebensader des gesamten Systems. In modernen Krananlagen übernimmt es simultan drei zentrale Aufgaben: Energieübertragung, Steuerungsintegration und Datenkommunikation.
Energieversorgung als kritische Systemfunktion
Die primäre Aufgabe des Kabelsystems besteht in der zuverlässigen Energieversorgung aller beweglichen Komponenten, insbesondere der Hubwerke, Fahrantriebe und Greifermechanismen. Ohne eine stabile Stromzufuhr ist die Funktion des Krans nicht gewährleistet.
Industrieanalysen zeigen, dass insbesondere Festoon-Kabelsysteme eine entscheidende Rolle für die kontinuierliche Stromversorgung spielen, indem sie auch unter dynamischen Bewegungen eine unterbrechungsfreie Energieübertragung ermöglichen.
Ein Ausfall dieser Energieversorgung kann unmittelbare Auswirkungen auf den gesamten Produktionsprozess haben, da Brückenkrane häufig als zentrale Materialflusssysteme in kontinuierlichen Anlagen eingesetzt werden.
Integration in das elektrische Gesamtsystem
Neben der Energieversorgung sind Kabel integraler Bestandteil des elektrischen Systems eines Krans, das aus Motorsteuerungen, Relais, Schutzsystemen und Steuerlogiken besteht.
Das elektrische System eines Brückenkrans umfasst komplexe Steuermechanismen zur Regelung von Geschwindigkeit, Lastaufnahme und Sicherheitsfunktionen.
Die Kabel fungieren hierbei als Schnittstelle zwischen:
Steuerung (SPS / Controller)
Sensorik (Positions-, Last- und Sicherheitssensoren)
Aktoren (Motoren, Bremsen, Greifer)
Damit wird deutlich: Das Kabelsystem ist nicht passiv, sondern ein aktiver Bestandteil der Systemfunktionalität.
Einfluss auf Sicherheit und Betriebskontinuität
Ein besonders kritischer Aspekt ist die Betriebssicherheit. Studien und Praxisberichte zeigen, dass elektrische Störungen oder Kabeldefekte zu Produktionsausfällen und potenziellen Schäden an Anlagen führen können.
Ein zuverlässiges Kabelsystem trägt wesentlich bei zu:
Vermeidung von Stillständen
Reduktion von Unfallrisiken
Sicherstellung konstanter Betriebsleistung
Gerade in Hochlastanwendungen (z. B. Stahlwerke oder Müllverbrennungsanlagen) kann ein Kabelausfall erhebliche wirtschaftliche Verluste verursachen.
Mechanische Schlüsselrolle im beweglichen System
Ein oft unterschätzter Punkt ist die mechanische Funktion der Kabel. Anders als in stationären Anlagen sind Krankabel permanent in Bewegung und müssen:
Biegewechsel
Zugbelastungen
Torsion
standhalten.
Industriequellen betonen, dass Kabel in der Kran- und Hebetechnik extremen mechanischen und klimatischen Belastungen ausgesetzt sind und daher speziell konstruiert werden müssen.
Damit übernehmen Kabel eine hybride Rolle: gleichzeitig mechanisches Bauteil und elektrische Infrastruktur
Strategische Bedeutung im Kontext Industrie 4.0
Mit zunehmender Digitalisierung wandelt sich die Rolle des Kabelsystems weiter:
Übertragung von Echtzeitdaten
Integration in Condition Monitoring Systeme
Unterstützung von Predictive Maintenance
Somit entwickelt sich das Kabelsystem zu einem datenführenden Element innerhalb cyber-physischer Systeme.
👉Das Kabelsystem ist kein untergeordnetes Zubehör, sondern ein zentrales, hochkritisches Subsystem, das die Energie-, Informations- und Funktionsintegration des gesamten Greiferbrückenkrans ermöglicht. Seine Qualität und Auslegung bestimmen maßgeblich die Zuverlässigkeit und Effizienz der Gesamtanlage.
Kabeltypen in Greiferbrückenkranen
Die Auswahl des geeigneten Kabeltyps ist entscheidend für die Leistungsfähigkeit und Lebensdauer eines Greiferschaufel-Brückenkrans. Unterschiedliche Bewegungsprofile und Einsatzbedingungen erfordern spezialisierte Kabelsysteme.
Hubwerksleitungen / Greiferkabel
Besonders kritisch sind die Kabel, die direkt mit dem Greifer verbunden sind.
Anforderungen:
Hohe Flexibilität bei vertikaler Bewegung
Beständigkeit gegen Torsion
Integration mehrerer Funktionen (Energie + Steuerung)
Diese Kabel sind oft als Hybridleitungen ausgeführt, die sowohl Leistung als auch Steuerdaten übertragen.
Spezialkabel für extreme Umgebungen
In bestimmten Anwendungen sind zusätzliche Anforderungen zu erfüllen:
Flammwidrigkeit (z. B. Kraftwerke)
Öl- und Chemikalienbeständigkeit (Recyclinganlagen)
UV- und Witterungsbeständigkeit (Hafenkrane)
Die Auswahl des Kabeltyps hängt somit stark vom Einsatzbereich ab.
Konstruktive Unterschiede und Materialtechnologie
Unabhängig vom Typ weisen moderne Krankabel folgende Merkmale auf:
Feindrähtige Leiter für hohe Flexibilität
Verstärkte Zugentlastung (z. B. Aramidfasern)
Spezielle Mantelmaterialien (PUR, Gummi)
Diese Konstruktionen sind notwendig, um den hohen mechanischen Anforderungen standzuhalten.
👉Die Vielfalt der eingesetzten Kabeltypen spiegelt die komplexen Bewegungs- und Belastungsprofile eines Greiferbrückenkrans wider. Eine falsche Auswahl kann zu vorzeitigem Verschleiß, Ausfällen und erheblichen wirtschaftlichen Schäden führen.


Mechanische und elektrische Belastungen
Die Betriebsbedingungen von Greiferschaufel-Brückenkranen zählen zu den anspruchsvollsten Einsatzszenarien für industrielle Kabelsysteme. Krankabel sind dabei nicht nur statischen, sondern vor allem hochdynamischen Mehrfachbelastungen ausgesetzt, die sich aus der kontinuierlichen Bewegung, der Lastaufnahme sowie den Umgebungsbedingungen ergeben.
Mechanische Belastungen: Multiaxiale Beanspruchung
Im praktischen Einsatz wirken auf Krankabel mehrere Belastungsarten gleichzeitig:
(1) Zug- und Schubkräfte
Kabel unterliegen sowohl statischen als auch dynamischen Zugkräften:
statisch: Eigengewicht bei vertikal hängenden Leitungen
dynamisch: Beschleunigungs- und Bremskräfte bei Kranbewegungen
Diese Kräfte können zu dauerhaften Spannungen im Leiteraufbau führen und erfordern konstruktive Maßnahmen wie Zugentlastungssysteme.
(2) Biegebeanspruchung (Wechselbiegung)
Eine der kritischsten Belastungen ist das kontinuierliche Wechselbiegen.
Krankabel können dabei Millionen von Biegezyklen ausgesetzt sein, insbesondere in Schleppsystemen oder Umlenkrollen.
wiederholte Biegung → Materialermüdung
zu kleiner Biegeradius → Rissbildung
kombinierte Biege-Zug-Belastung → beschleunigter Verschleiß
(3) Torsion (Verdrehbelastung)
Torsion tritt auf, wenn sich Kabel um ihre eigene Achse drehen – etwa bei Greiferbewegungen oder unkontrollierten Bewegungsabläufen.
führt zu Aderbruch und Mantelschäden
beeinträchtigt die Schirmung und EMV-Eigenschaften
reduziert signifikant die Lebensdauer
In extremen Anwendungen können Kabel Torsionswinkel von mehreren hundert Grad pro Meter sowie Millionen Bewegungszyklen erreichen.
(4) Abrieb, Druck und Umwelteinflüsse
Zusätzlich wirken:
mechanischer Abrieb (z. B. an Rollen oder Führungssystemen)
Druckbelastungen bei Verlegung
Umweltfaktoren wie Feuchtigkeit, UV-Strahlung, Staub
Krankabel müssen daher gleichzeitig robust und flexibel ausgelegt sein.
Elektromechanische Wechselwirkungen
Ein entscheidender, oft unterschätzter Punkt ist die Kopplung zwischen mechanischer und elektrischer Belastung:
mechanische Schäden → erhöhen Übergangswiderstände
Leiterbruch → Unterbrechung der Energieversorgung
beschädigte Schirmung → EMV-Probleme
Diese Wechselwirkungen zeigen, dass mechanische Belastungen nicht isoliert betrachtet werden dürfen, sondern direkte elektrische Konsequenzen haben.
Thermische und elektrische Belastungen
Neben mechanischen Einflüssen spielen auch elektrische Parameter eine zentrale Rolle:
Stromwärme (Joule-Effekt)
Stromfluss erzeugt Wärme
Überlast oder schlechte Wärmeabfuhr → Überhitzung
kann Isolationsmaterial schädigen
Spannungsschwankungen und Lastwechsel
führen zu elektrischer Alterung
erhöhen Risiko von Isolationsdurchschlägen
Elektromagnetische Einflüsse (EMV)
besonders relevant bei Daten- und Steuerleitungen
Störungen können Signalqualität beeinträchtigen
👉 Krankabel sind hochkomplexen, kombinierten Belastungen ausgesetzt: mechanisch, elektrisch und thermisch.Die größte Herausforderung besteht nicht in einzelnen Belastungsarten, sondern in deren gleichzeitiger Überlagerung.Daraus ergibt sich die Notwendigkeit speziell entwickelter Hochleistungsleitungen für Krananwendungen.
Werkstoffe und Konstruktion moderner Kranleitungen
Die extremen Belastungsbedingungen erfordern eine hochspezialisierte Konstruktion moderner Kranleitungen. Diese basiert auf einem mehrschichtigen, funktionsoptimierten Aufbau, bei dem jedes Element gezielt auf bestimmte Belastungen ausgelegt ist.
Leiteraufbau: Flexibilität durch Feinstdrähtigkeit
Moderne Krankabel verwenden:
feindrähtige Kupferleiter (Klasse 5/6 nach IEC 60228)
hohe Anzahl dünner Einzeldrähte
👉 Vorteil:
hohe Flexibilität
bessere Widerstandsfähigkeit gegen Biegewechsel
Diese Struktur reduziert die Gefahr von Leiterbrüchen bei dynamischer Belastung.
Verseilung und Litzenstruktur
Die Art der Verseilung ist entscheidend für die mechanische Belastbarkeit:
kurze Schlaglängen → höhere Flexibilität
spezielle Verseilgeometrien → bessere Torsionsfähigkeit
Eine optimierte Litzenstruktur verhindert ungleichmäßige Spannungsverteilung im Kabelinneren.
Isolations- und Mantelmaterialien
Die Materialwahl ist ein zentraler Faktor für die Lebensdauer:
Typische Materialien:
Gummi (EPR, CR) → hohe Flexibilität, temperaturbeständig
PUR (Polyurethan) → abriebfest, ölbeständig
PVC (eingeschränkt) → kostengünstig, aber weniger flexibel
Funktionale Anforderungen:
Beständigkeit gegen mechanische Belastung
Schutz vor Feuchtigkeit und Chemikalien
Flammwidrigkeit
Industriequellen betonen, dass Krankabel sowohl extrem robust als auch flexibel sein müssen.
Zugentlastung und Tragstruktur
Ein wesentliches konstruktives Element ist die integrierte Zugentlastung:
Verwendung von Aramidfasern oder Stahleinlagen
Aufnahme der mechanischen Zugkräfte
Schutz der Leiter vor Dehnung
Diese Konstruktion verhindert, dass mechanische Kräfte direkt auf die elektrischen Leiter wirken.
Schirmung und EMV-Design
Für moderne, datenintensive Anwendungen sind Schirmungen notwendig:
Geflechtschirm oder Folienschirm
Schutz vor elektromagnetischen Störungen
Sicherstellung stabiler Signalübertragung
Besonders wichtig in automatisierten Krananlagen mit Sensorik und Steuerungssystemen.
Hybrid- und Spezialkonstruktionen
Ein klarer Trend ist die Entwicklung von Hybridkabeln, die mehrere Funktionen integrieren:
Energie + Steuerung + Daten
reduzierte Komplexität im System
geringerer Installationsaufwand
Zusätzlich gibt es Spezialkonstruktionen für:
extreme Temperaturen
Offshore-Umgebungen
chemisch aggressive Bereiche
Lebensdauerorientiertes Design
Die Konstruktion moderner Kranleitungen erfolgt zunehmend auf Basis von:
Lebensdauerberechnungen
Simulationen von Bewegungszyklen
standardisierten Prüfverfahren (Biege-, Zug- und Torsionstests)
Ziel ist eine maximale Zuverlässigkeit bei minimalen Wartungskosten.
👉 Moderne Kranleitungen sind hochentwickelte technische Produkte, deren Leistungsfähigkeit auf der präzisen Abstimmung von:
Leiteraufbau
Materialtechnologie
mechanischer Konstruktion
beruht.
Sie sind das Ergebnis einer engen Verbindung von Materialwissenschaft, Elektrotechnik und Maschinenbau.


Typische Ausfallmechanismen und Risiken
Die Analyse realer Schadensfälle zeigt, dass Kabelsysteme in Krananlagen selten plötzlich versagen, sondern typischerweise einem progressiven Degradationsprozess unterliegen. Dieser Prozess ist das Ergebnis kombinierter mechanischer, thermischer und elektrischer Belastungen.
Ermüdung als dominanter Ausfallmechanismus
Zahlreiche Untersuchungen aus der Fehleranalyse von Kranseilen und Kabelsystemen belegen, dass Materialermüdung (Fatigue) die häufigste Ursache für Versagen ist.
Mikrorisse entstehen durch wiederholte Biege- und Torsionszyklen
Diese Risse wachsen schrittweise unter zyklischer Belastung
Schließlich kommt es zum Bruch einzelner Leiter oder ganzer Stränge
Eine Studie zur Analyse von Kranseilen zeigt, dass Brüche typischerweise durch ermüdungsbedingte Rissbildung initiiert werden, die sich unter wiederholter Belastung ausbreitet.
Auch in industriellen Anwendungen von Kranleitungen beginnt der Ausfall häufig in den äußeren Leiterlagen, wo die mechanische Belastung am höchsten ist.
Verschleiß und Abrasion als Beschleuniger
Neben der Ermüdung spielt mechanischer Verschleiß eine zentrale Rolle:
Reibung an Umlenkrollen oder Trommeln
Kontaktstress zwischen einzelnen Leitern oder Komponenten
Materialabtrag an der Oberfläche
Untersuchungen zeigen, dass Verschleiß häufig als Initiationsmechanismus für Rissbildung wirkt, der anschließend durch Ermüdung verstärkt wird.
Torsions- und Überlastversagen
In komplexen Bewegungsabläufen treten zusätzlich auf:
Torsionsspannungen → Verdrehung der Leiterstruktur
Überlastfälle → plastische Verformung oder sofortiger Bruch
Eine Analyse von Offshore-Kranseilen zeigt, dass insbesondere zyklische Torsion zu strukturellen Schäden und schließlich zum Versagen führen kann.
Thermische Alterung und Isolationsversagen
Elektrische Belastungen führen zu:
Erwärmung durch Stromfluss
thermische Alterung der Isolation
Materialversprödung
Langfristig resultiert daraus:
Verlust der dielektrischen Eigenschaften
erhöhte Wahrscheinlichkeit von Kurzschlüssen
Wartungs- und Inspektionsdefizite als Risikofaktor
Ein entscheidender Faktor ist der menschliche Einfluss:
unzureichende Inspektion
falsche Auswahl des Kabeltyps
fehlende vorbeugende Wartung
Fehleranalysen zeigen, dass mangelhafte Inspektion maßgeblich zur Verkürzung der Lebensdauer beiträgt.
👉 Typische Ausfallmechanismen sind nicht isoliert, sondern das Ergebnis eines kombinierten Wirkens von:
Ermüdung
Verschleiß
Torsion
thermischer Alterung
Der Schlüssel zur Zuverlässigkeit liegt daher in präventiver Überwachung und optimierter Auslegung.
Normen und technische Anforderungen
Wichtige Normen umfassen:
DIN VDE Standards
IEC 60228 (Leiterklassen)
EN 50525 (Niederspannungskabel)
Diese Normen definieren Anforderungen an:
elektrische Sicherheit
mechanische Belastbarkeit
Umweltbeständigkeit
Digitalisierung und smarte Kabelsysteme
Mit der zunehmenden Digitalisierung industrieller Anlagen entwickelt sich auch das Kabelsystem von einem passiven Bauteil zu einem intelligenten, datenliefernden System.
Condition Monitoring und Sensorintegration
Moderne Krankabel können mit integrierten Sensoren ausgestattet werden, die kontinuierlich erfassen:
Temperatur
mechanische Belastung (Biegung, Zug, Torsion)
elektrische Parameter
Diese Daten ermöglichen eine Echtzeitüberwachung des Kabelzustands.
Predictive Maintenance
Ein zentraler Fortschritt ist die Einführung von vorausschauender Wartung:
Analyse historischer und aktueller Daten
Identifikation von Verschleißmustern
Vorhersage von Ausfällen
Forschungsarbeiten zur Kabelzuverlässigkeit zeigen, dass datenbasierte Modelle (z. B. Weibull-Analysen) genutzt werden können, um Ausfallwahrscheinlichkeiten präzise zu prognostizieren.
Datenintegration in Industrie-4.0-Systeme
Smarte Kabelsysteme sind zunehmend eingebunden in:
SCADA-Systeme
digitale Zwillinge
IoT-Plattformen
Dadurch wird der Kran Teil eines vernetzten, datengetriebenen Systems.
KI-gestützte Fehlererkennung
Neue Ansätze nutzen:
Machine Learning
Mustererkennung in Sensordaten
automatische Fehlerdiagnose
Studien zeigen, dass datengetriebene Modelle in der Lage sind, frühe Anomalien zu erkennen, lange bevor ein Ausfall eintritt.
Zukunftstrends und Innovationen
Hochleistungsmaterialien
Neue Materialien zielen auf:
höhere Flexibilität
größere Lebensdauer
geringeres Gewicht
Beispiele:
verbesserte Elastomere
Hochleistungspolymere
faserverstärkte Strukturen
Hybrid- und Multifunktionskabel
Ein klarer Trend ist die Integration mehrerer Funktionen:
Energie + Daten + Steuerung
reduzierte Komplexität
geringerer Installationsaufwand
Autonome und automatisierte Kransysteme
Mit zunehmender Automatisierung steigen die Anforderungen an Kabel:
höhere Datenraten
geringere Störanfälligkeit
höhere Zuverlässigkeit
Digitale Zwillinge und Simulation
Zukünftige Systeme nutzen:
virtuelle Modelle des Kabelsystems
Simulation von Belastungen
Lebensdauerprognosen
Diese Technologien ermöglichen eine optimierte Auslegung bereits in der Planungsphase.
Nachhaltigkeit und Lebenszyklusoptimierung
Ein wachsender Fokus liegt auf:
langlebigen Materialien
reduzierten Wartungszyklen
Recyclingfähigkeit
Gesamtfazit Zukunft
Die Entwicklung von Kranleitungen bewegt sich in Richtung:
👉 intelligent + langlebig + integriert + datengetrieben
Das Kabel wird damit zu einem zentralen Element moderner, automatisierter Industrieanlagen.
Fazit
Das Kabelsystem von Greiferschaufel-Brückenkranen ist weit mehr als ein passives Verbindungselement. Es ist ein hochkomplexes, sicherheitskritisches System, das maßgeblich zur Effizienz und Zuverlässigkeit der gesamten Anlage beiträgt.
Mit steigender Automatisierung und Digitalisierung gewinnt die Qualität und Intelligenz der eingesetzten Kabel zunehmend an Bedeutung. Unternehmen, die in hochwertige Kranleitungen investieren, profitieren langfristig von geringeren Ausfallzeiten, höherer Betriebssicherheit und optimierten Wartungskosten.
